Architecture d’intérieur à Riom, Clermont-Ferrand et alentours

De l’esquisse au suivi des travaux, je vous accompagne pour tous vos projets de rénovation et d’aménagement intérieur .

Mission partielle ou complète

Les différentes étapes d’un projet réussi:

Logo Cot A Cot Architecture d'intérieur

Premier rendez-vous : découvrir, comprendre, analyser, poser les bases

Ce premier rendez-vous est essentiel : il permet de découvrir le projet, de comprendre vos besoins, vos envies, vos contraintes, et de poser les bases d’une collaboration sur mesure.

Lors de cet échange, nous abordons votre cahier des charges.

– La nature du lieu : logement, local professionnel, commerce, etc…
– Les attentes fonctionnelles et esthétiques,
– Les contraintes techniques, réglementaires et budgétaires,
– Vos habitudes de vie ou de travail,
– Vos inspirations ou références, si vous en avez.

Ce rendez-vous est aussi l’occasion de visiter les lieux et me permet de percevoir le potentiel du site, d’identifier les points forts, les axes d’amélioration et les contraintes.

premier rdv cot a cot architecture d'intérieur

Une proposition de mission partielle ou complète est alors établie, tenant compte du projet, des éléments identifiés et du calendrier souhaité.

Logo Cot A Cot Architecture d'intérieur

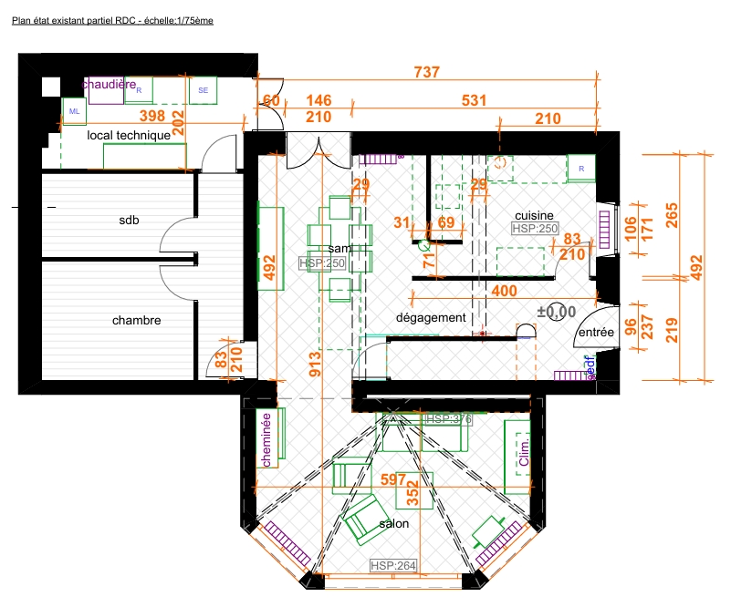
État des lieux

En l’absence de plans de l’état existant, je réalise un relevé précis des pièces concernées par votre projet:

– Mesures, photos, diagnostic spatial
– Retranscription des plans à l’échelle

Etat des lieux à Ennezat , par Cot A Cot Architecture d'intérieur.
Logo Cot A Cot Architecture d'intérieur

Esquisse de projet

L’esquisse est la première étape de conception du projet. Elle traduit les besoins identifiés lors du diagnostic et du cahier des charges en propositions spatiales concrètes. C’est une phase créative, stratégique et structurante.

– Explorer différentes options d’aménagement
– Définir les grands principes de circulation, de volumes et de fonctions
– Esquisser l’ambiance et l’identité du lieu à travers les matériaux, la lumière, les proportions
– Vérifier la faisabilité technique des solutions envisagées

Dossier graphique composé de :

– Plans d’intention, croquis à main levée ou modélisation 3D
– Planches d’ambiance
– Références visuelles pour illustrer les partis pris

Esquisse de projet par Cot A Cot Architecture d'intérieur.

L’objectif est de valider ensemble une direction claire pour passer ensuite au développement détaillé du projet (APS/APD).

L’esquisse n’est pas un projet définitif, mais une base solide et cohérente qui structure toutes les étapes suivantes. Elle permet de s’assurer que l’architecture intérieure proposée répond aux usages, respecte les contraintes et porte une véritable intention esthétique et fonctionnelle.

Logo Cot A Cot Architecture d'intérieur

Avant projet sommaire : affiner les choix, valider la direction

L’avant-Projet Sommaire (APS) permet de préciser le projet, d’approfondir les intentions retenues et de vérifier leur faisabilité dans le détail.

– Définir les principes d’aménagement validés (organisation des espaces, dimensions, implantations techniques)
– Affiner les choix de matériaux, couleurs, équipements et ambiances
– Intégrer les premières contraintes techniques ou réglementaires
– Estimer un budget prévisionnel cohérent avec le projet

– Plans et coupes à l’échelle (zonage, aménagement, cloisonnements)
– Axonométries, croquis, vues 3D ou rendus selon les besoins
– Sélections de matériaux, références mobiliers ou luminaires

Mobilier sur mesure , à Riom, par Cot A Cot Architecture d'intérieur.

Avant projet définitif : préciser, préparer, cadrer

L’Avant-Projet Définitif (APD) est la version finalisée du projet, techniquement aboutie et prête à être transmise aux entreprises pour consultation ou chiffrage. Le projet est à ce stade entièrement défini. Il constitue la base des futures étapes de consultation des entreprises, dépôt de déclaration préalable si nécessaire, ou préparation du chantier.


Logo Cot A Cot Architecture d'intérieur

Consultation des entreprises : chiffrer et préparer l’exécution

Le dossier de Consultation des Entreprises (DCE) permet de préparer les documents techniques nécessaires à la mise en concurrence des entreprises et à l’établissement de devis précis.

– Le dossier technique complet: plans cotés, coupes, élévations, schémas d’implantation.
– Un descriptif détaillé lot par lot.
– Le planning prévisionnel de travaux.
– L’assistance à la consultation des entreprises et à la comparaison des devis, rédaction des marchés des travaux.

L’objectif est de permettre aux entreprises de comprendre le projet a exécuter, et d’établir des propositions chiffrées fiables et comparables.

Suivi des travaux : exécuter, coordonner, garantir la qualité

Le suivi de chantier garantit la bonne exécution du projet, dans le respect des plans, des délais et du budget.

– Planification des interventions et le suivi du calendrier.
– Organisation de réunions de chantier, avec comptes-rendus réguliers.
– Contrôle de la conformité des travaux réalisés.
– Interface avec les artisans, fournisseurs et entreprises.
– Accompagnement lors de la réception du chantier.

planning par Cot A Cot Architecture d'intérieur

Cette phase est essentielle pour coordonner les intervenants, anticiper les imprévus, assurer la qualité des finitions et garantir que le résultat final soit conforme au projet validé

Rénovation d'une cuisine (photo avant travaux), à Riom, par Cot A Cot Architecture d'intérieur.
Rénovation cuisine, Riom (63)- Avant travaux
Rénovation d'une cuisine (travaux), à Riom, par Cot A Cot Architecture d'intérieur.
Rénovation cuisine, Riom (63)- Travaux
Rénovation d'une cuisine, à Riom, par Cot A Cot Architecture d'intérieur.
Rénovation cuisine, Riom (63)- Après travaux
Bibliothèque TV salon, à Châtelguyon (63), par Cot A Cot Architecture d'intérieur.
Bibliothèque- Châtelguyon (63)
Dressing à Châtelguyon (63), par Cot A Cot Architecture d'intérieur.
Dressing- Châtelguyon (63)
Style unique
Idées modernes
Design fonctionnel
Solution technique